Skip to content

Vermont Farmhouse Project

Federal Colonial farmhouse renovation in beautiful Vermont

  • Home
  • About
  • House
  • Plans / Details / Finishes
  • Property

Category: Plans / Details / Finishes

Plans / Details / FinishesLeave a comment

Winter Work – preserving character

December 29, 2016 annam

One challenge we had when we created the 2nd floor bathroom was how to keep the access to the attic which is located up steep stairs in a unique little passage way between the hall and the bathroom, and provide … Continue reading Winter Work – preserving character

House, Plans / Details / Finishes2 Comments

Kitchen Island Lighting

April 20, 2016 annam

    Continue reading Kitchen Island Lighting

Plans / Details / Finishes1 Comment

Finishing Touches

March 7, 2016 annam

It has been quite sometime since I last added a post about the house. Work is ongoing but has slowed. Winter in Vermont can be brutal on a house. Luckily this winter everything has been fine. No frozen pipes or … Continue reading Finishing Touches

Plans / Details / FinishesLeave a comment

Painting continues…

October 28, 2015October 28, 2015 annam

One never gets bored of work to be done on an old house that has been gutted inside out. The Living Room has been “paint ready” for months now. Finally got round to painting and after it was done it … Continue reading Painting continues…

Plans / Details / Finishes2 Comments

Exterior Painting Update

September 9, 2015September 9, 2015 annam

via New Post — WordPress.com. After six weeks exterior painting on the house is nearly complete. It has been scraped, primed and painted and new gutters installed. The color is “PURE WHITE” from Sherwin Williams for trim and siding to stay … Continue reading Exterior Painting Update

Plans / Details / Finishes1 Comment

Paint Color Inspiration

July 19, 2015April 21, 2017 annam

Picking the right paint colors for the walls is one of the hardest decision to make. Color is so subjective and people react so differently to the same colors and there are literally hundreds of colors to choose from. It … Continue reading Paint Color Inspiration

Plans / Details / Finishes4 Comments

Lighting Design

May 4, 2015April 21, 2017 annam

Selecting and placing the appropriate light fixtures in a space is one of my favorite things to design. Lighting plays such a crucial role on how a room looks and feels, and how we experience a space. There are so … Continue reading Lighting Design

Plans / Details / Finishes4 Comments

New Kitchen Design – Updated

March 6, 2015April 21, 2017 annam

The existing Kitchen is the weakest link in the entire house. It lacks insulation and is cold and drafty. The cabinet and appliance layout is awkward. Never mind the style – bland and outdated. There is only a subfloor and … Continue reading New Kitchen Design – Updated

Plans / Details / FinishesLeave a comment

Antique Wallpaper

January 30, 2015April 21, 2017 annam

The entire house was wallpapered. Some of the wallpaper is in good condition and may be worth saving (like the hallway) but the majority is dated and in poor condition. I went to work on our bedroom walls stripping away … Continue reading Antique Wallpaper

House, Plans / Details / FinishesLeave a comment

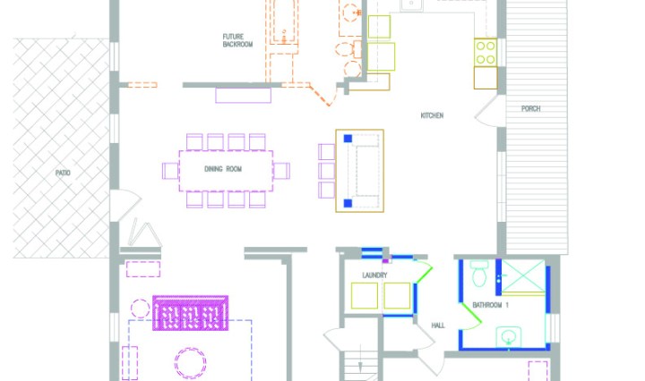
Floor Plans

January 29, 2015April 21, 2017 annam

Our house isn’t a typical small, quaint rural farmhouse. It is filled with large, spacious rooms and has 4 bedrooms – with enough beds to sleep 11. We wanted a lot of space to be able to comfortably host all our … Continue reading Floor Plans

  • Home
  • About
  • House
  • Plans / Details / Finishes
  • Property
Create a free website or blog at WordPress.com.
Privacy & Cookies: This site uses cookies. By continuing to use this website, you agree to their use.
To find out more, including how to control cookies, see here: Cookie Policy
  • Subscribe Subscribed
    • Vermont Farmhouse Project
    • Already have a WordPress.com account? Log in now.
    • Vermont Farmhouse Project
    • Subscribe Subscribed
    • Sign up
    • Log in
    • Report this content
    • View site in Reader
    • Manage subscriptions
    • Collapse this bar
 

Loading Comments...