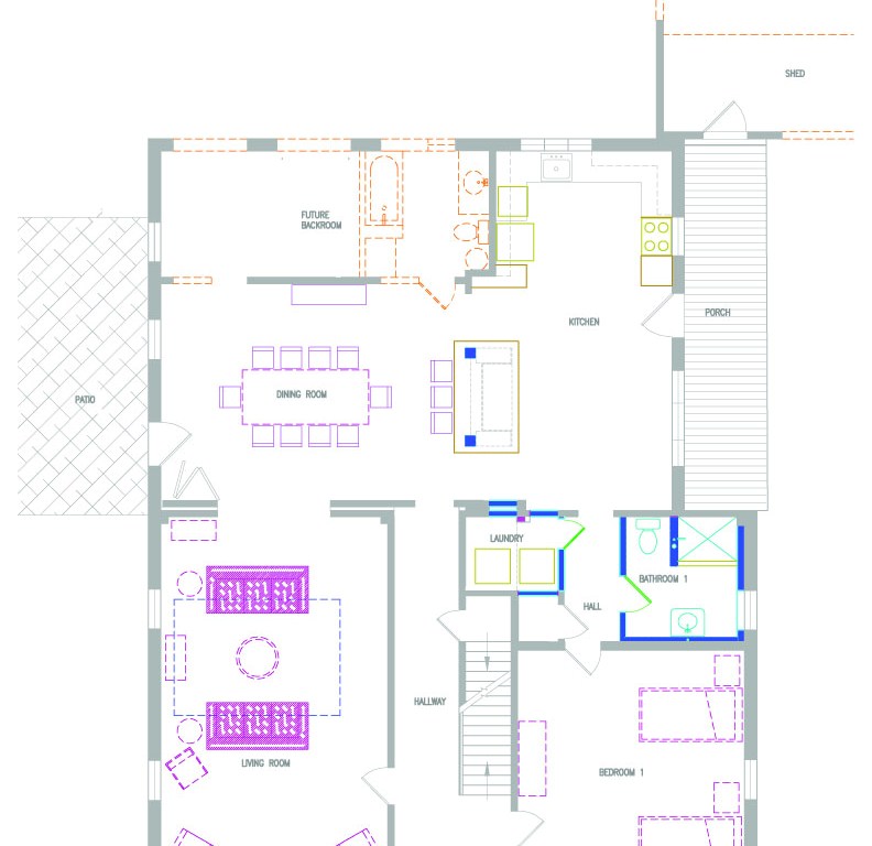
Our house isn’t a typical small, quaint rural farmhouse. It is filled with large, spacious rooms and has 4 bedrooms – with enough beds to sleep 11. We wanted a lot of space to be able to comfortably host all our families at one time.
The total square footage is 2900 SF of finished space. There are two unfinished attics: one on the bedroom floor which has potential to be a large kids’ bunkroom; and one up above the bedrooms which is massive. Also on the property is a wood shed and a detached 2 car garage.
Here are the floor plans showing current state of the projects and size of the rooms. We are in the process of adding a 2nd Floor Bathroom and demolishing the wall between the Kitchen and Dining Room to create an open center island.

